Next event:
ERINN SAVAGE – Performance
Tomorrow 15:00 GMT

MSA Stage 4

The Diploma in Architecture programme is designed to provide the necessary educational framework for students who intend to enter the architectural profession. It is accredited by the ARB/ RIBA and offers exemption from the Part II professional exam. Typically, students who undertake the DipArch will have already studied architecture at undergraduate level. The course is two years long with an option to extend your studies by 1 semester to undertake the Masters by Conversion course. The programme is mainly studio based with supporting lecture based courses in Architectural Technology and Professional Studies. The studio work centres on contemporary issues of architecture within a European climate firstly focusing on Glasgow then on a European city, this academic year Antwerp, with specialist inputs into social, economic, environmental and political aspects of architecture provided by staff and guests.

The first year of the Diploma (Year 4) is the opportunity for students to extend design skills within a rigorous creative studio and to explore architecture as a response to contemporary issues. Glasgow is one of the UK’s most architecturally stimulating cities and the projects are all based within the city as a result. Strategic and critical thinking and a personal approach to designing is encouraged through the studio-projects. This is a preparation for the extended independent study of the final year Thesis Design. Emphasis continues to be placed on drawing and model making as means of rigorously investigating, clarifying and developing a design. This year the projects were the design for a mixed use neighbourhood, high density housing, and the design of a cultural building both based within the Merchant city of Glasgow.

The second year of the Diploma (Year 5) centres on one major project, a Design Thesis. Building on the study and analysis of Glasgow, year 5 students move into the European city, this year focusing on Antwerp and the United Nations 17 Sustainable Goals. The Design Thesis encompasses all the ambition, dreams and accumulated skills expected of a student nearing the completion of their education. It is a vehicle for personal study, in which the topic is selected by the student in accordance with their particular interests and developed in association with the tutorial staff. Projects explore a variety of site conditions within the selected city. The project is developed from concept design through to design in detail with Architectural Technology fully integrated into the architectural response.

Axonometric

Axo View of Urban Dwelling

Central Perspective

Perspective view of urban building

External Perspective

Perspective of urban building as seen from common courtyard

2 Alternate perspectives

Perspectives of alternate explored versions of the scheme

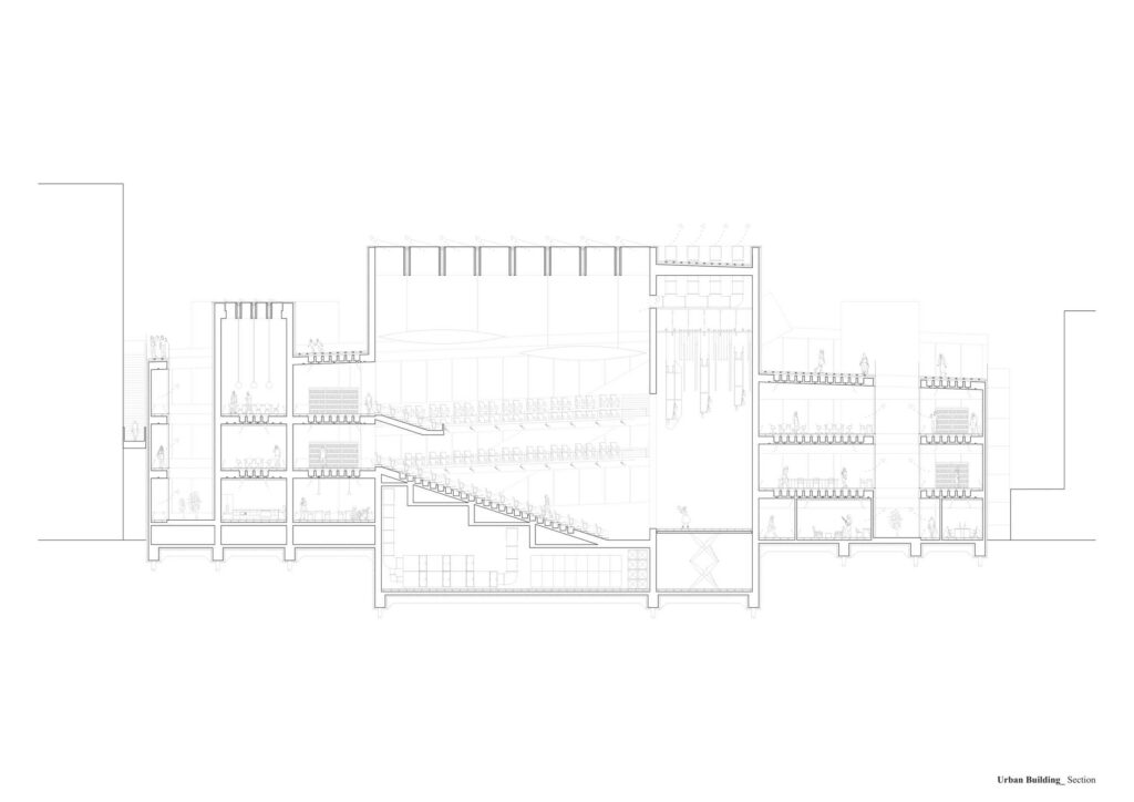
Long Section and Elevation

Long Elevation/Section of urban building

Elevation & cross sections

Cross sections / elevation of urban dwelling

Axonometric Studies

Axo Studies of urban dwelling

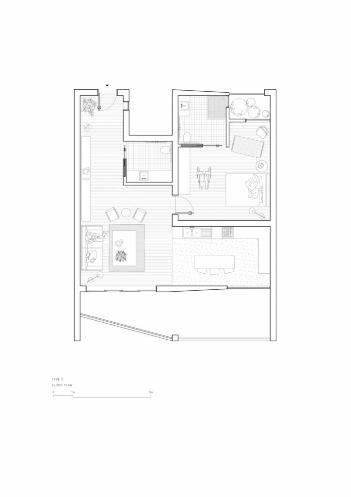
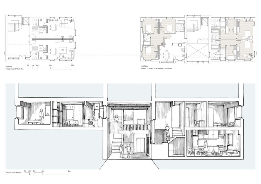
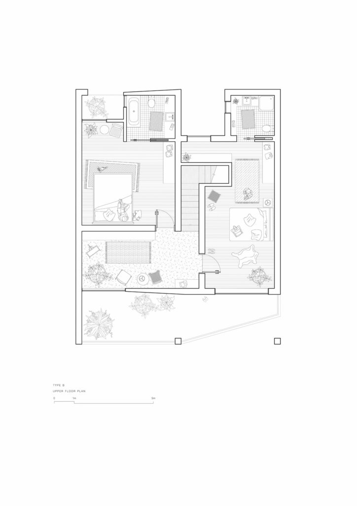
Unit Floor plans

Examples of adapted unit floor plans to suit a variety of living conditions

Structural Work

Structural details of a separate project

1:50 Study model

A study model completed early on in the project timeline

project title

cell unit - old + new

masterplan

block deconstructed

site map

sections

axo of joint family level

view of unit terrace

model image

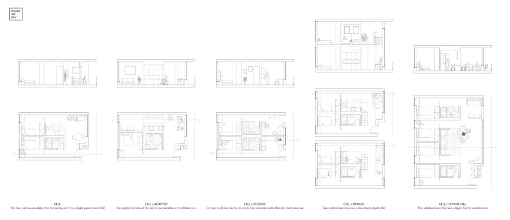
pause or pay

I, as a graduating student at the Glasgow School of Art, would like to state my support for the Pause or Pay Campaign.

Title page

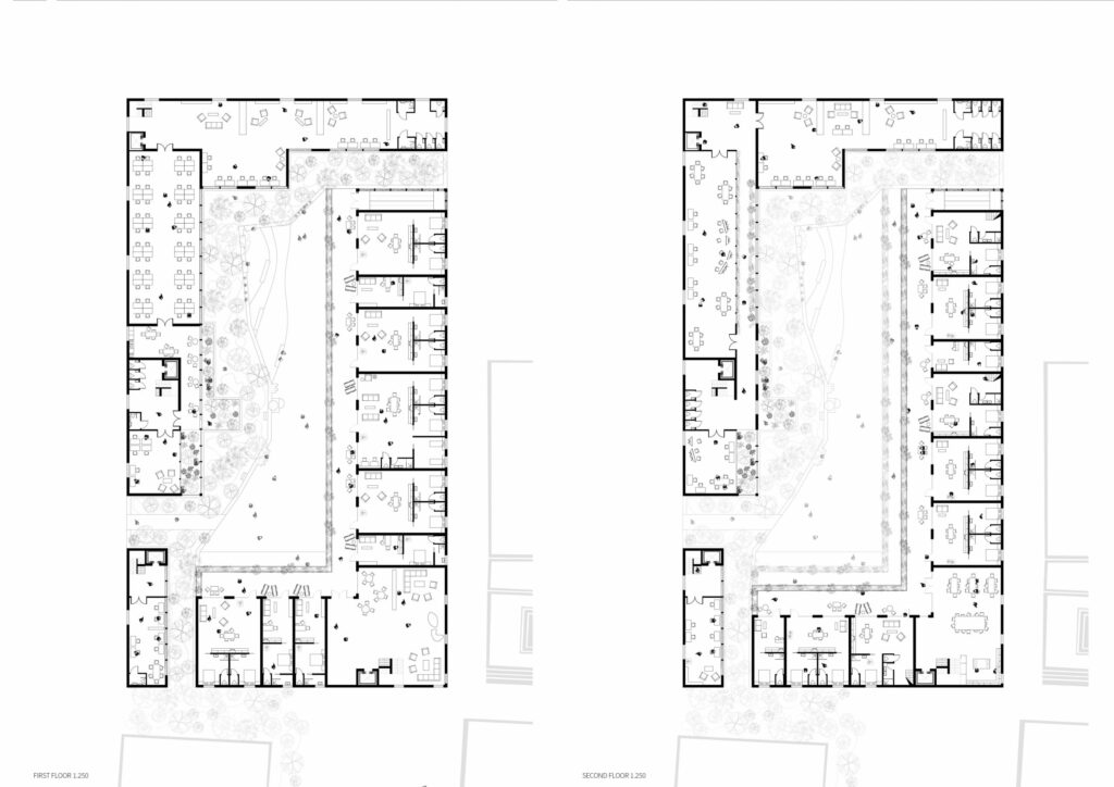
Ground floor plan

Flat type for multigenerational family

Flat type for live/work at home

Flat type for artisans

Section/Elevation 1

Perspective of library

Perspective of courtyard

Redefining Homeless Housing

Site

Redefining Homeless Housing

Cell Types

Redefining Homeless Housing

Cell Sections

Redefining Homeless Housing

Elevation

Redefining Homeless Housing

Plans

Redefining Homeless Housing

Interior Visuals

Redefining Homeless Housing

Exterior Visual

Redefining Homeless Housing

Exterior Visual

The Music Lab

Diagrams

Ground Floor Plan

First Floor Plan

Second Floor Plan

Third Floor Plan

Merchant City Perspective

Long Section

Site Information

Thesis Investigation

Spatial Development

Ground Floor Plan

Long Section

Earlier Stage 4 Work

The physical

The void in between

The digital

HF-MCG-01

10.00 A.M. 21st June 2023

10.00 P.M. 21st December 2023

12.00 P.M. 30th November 2023

3.00 P.M. 13th February 2023

6.00 P.M. 11th September 2023

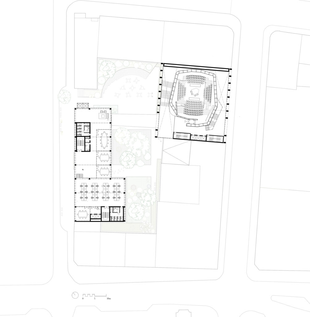
In the project I have chosen for the Degree Show we were given a brief asking to design a public building, consisting of a performance space of a certain spectators' capacity, accompanied by an additional programme of our choice. The site of this project is located on Candleriggs, within the Merchant City district in Glasgow. My proposal is a cultural centre, which consist of an amateur/experimental theatre, exhibition space, flexible workshop spaces which can be adapted for teaching art and small crafts that do not require heavy equippement, library and a top-floor cafe. The overarching idea that connects all the function is the exchange – of experiences, knowledge, skills, memories – through a variety of storytelling devices – performances, art – or act of “creating” in general – formal and informal conversation. Theatre space does not have traditional rows of seats, which are replaced with wide stair-seats, that can become parts of the stage if necessary; voids, present in the exhibition and library parts of the building, as well as mostly open – and if enclosed, then glazed – spaces, allow the different parts of the building to blend one into another. Wide stair-like structure is also used through the library floors, allowing to subtly differenciate between the space of the borrowing collection and places more private, where one can sit and rest, preferably with a book. Use of light and charred wood as external and internal cladding creates a feeling of depth – on the outside, with charred wood - that draws a passer by into itself, together with a frosted glass screen that allows one to see the sillhouetes of the performers preparing for the play; light wood finish used within the interiors provides a warm, welcoming atmosphere and counteracts the large volumes of the building by its organic qualities; big factory-like windows allow a glimpse into the outside world, and vice versa – users of the building can observe the street while feeling safely enclosed. [a fragment of “There's no sea...” mural by Michal 'Sepe' Wrega has been used in the 1:50 section drawing]

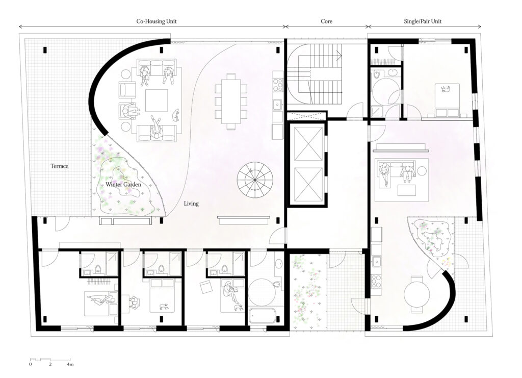
Co-living cell archetypal: two cell types

This project focuses on the relationship between domesticity and labour in the contemporary society. Throughout rising of population in cities, sometimes it is hard to feel a sense of belonging and often feel lonely. Urban loneliness is connected to population mobility, declining community participation and a growth in single-occupant households. After a burnout day it is important to separate work from home, or spaces that can evoke that. Feeling of isolation is connected with high rates of people living alone. I will be studying precedents such as wellness centres and healing environments that architecturally promotes mental health and conclude by incorporating it in the co-living housing typology proposal.

Transitioning from work to home: social space

Decreased attention on personal spaces in living typology and lack on social interaction between others in the community, this contemporary ideology of architecture condition can have physical and mental effects on the individual. An unconnected society. Creating generous spaces for social bonding is the attention necessary in co-living typology and improve mental health.

Transitioning from work to home: cleanse

Architecture is used to create a route where step by step the user travels through the building is being cleansed physically and mentally from work and transitioning into domesticity. It is shown in the clear cohesion of spaces that are to function as physical cleanse or evoke the feeling of mental cleanse.

Spacial distinction section

A design that has additional opportunities to encourage users to lower their stress levels, internal and external qualities of a building that could result in having a positive effect on the user’s wellbeing and applying that in a city context. A sanctuary within the chaotic city life. An oasis.

From Urban to Oasis

Decreased attention on personal spaces in living typology and lack on social interaction between others in the community, this contemporary ideology of architecture condition can have physical and mental effects on the individual. An unconnected society. The design reevaluates the sense of community through a public pathway above ground that connects all buildings within the site. It allows for social bonding in the neighbourhood that feels safe. A place that can relieve the feeling of disorientation in the busy city, sense control when you are able to see everything in a new perspective. The contrast between urban and oasis, seeing buildings looking up in the city, but in the design being able to see them looking down.

S4 Studio. Cell Prototype

Stage 4 Studio (Cell, Block, District): A prototype dwelling (Cell) developed using the modular 3x3x3 structural cube system, with modular components such as walls, Windows, floors etc. The structural system allows for large span cantilevers, allowing courtyards to expose the nature from below and the allow light to penetrate from above. 2019.

S4 Studio

Stage 4 Studio (Cell, Block, District): The centre of the development viewed from street level shows the vertical layering from the public, open gardens on street level to the private developments which have naturally (unplanned) taken shape above to suit individual requirements. 2019.

34 Riverside View, Alloa

Craig's First project completed as a Design & Build Developer, while studying at GSA. He designed, detailed, costed, procured and project-managed the project between 2018 and 2019. The 22sqm domestic extension is a high quality design, utilising the confines of the site and passive design to enhance the spaces within with lots of light, ventilation and views to the garden. It uses High quality, long-lasting materials such as Dutch brick, Western Red Cedar, Zinc and Aluminium, and adopts a unique but simple steel ring beam to create seamless Corner openings. The final cost of £43,000 was under the national per/sqm average. See website. 2019.

Art Gallery, Forth Valley College

The Art Gallery was Craig's final year Graded Unit assignment - a result of 6 months work to fully develop a large-scale commercial building, from design, technical detailing, costing, implementation and final presentation. It itilised a steel space frame and a hyperbolic parabaloid roof to create a range of spaces within. Craig recently revised the project to make small amendments to materials, vegetation and even implemented a new gallery. Craig developed the design alongside his tutor - a graduate of GSA himself, Stuart Taylor. Craig's use of 3d live rendering as a design tool during the project set a standard which the college later adopted and one which Craig has continually adapted over the years. Craig credits the building as preparing him for professional practice and his eventual enrolement on the GSA Architecture course. See Website. 2014, 2019.

Dwelling Experiment A

Dwelling House A: Designed on a real-life plot, the Dwelling design was made by Craig as an experiment and was later used in his dissertation focusing on the viability of the architect to be both designer and developer. Using natural materials, and a unique structural approach, the Dwelling explores the possibility for designers to be more expressive in their designs while remaiming financially feasible. See website. 2019.

Dwelling Experiment B

Dwelling House B: An experimental Dwelling project which explores vertical design on a Urban plot. The design features striking Architecture, designed to allow light and ventilation to reach all parts of the Dwelling providing an attractive and mindful internal environment that allows it's users to reconnect with the city surroundings while maintaining a sense of privacy and security. It utilises a range of materials from recycled brick, corrugated steel and Aluminium to increase building performance while recreating a spiritual connection to the Urban fabric. This project designed by Craig and was later scrutinised and costed as part of Craig's Dissertation. See website. 2019.

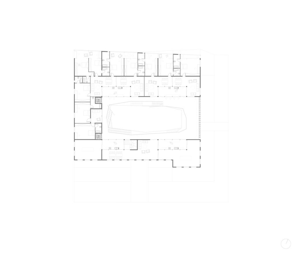
No Ownership Modes: Internal view of the architype R2++.

Four types of housing units were developed. R2++ is a Co-Housing unit on two levels which allows up to 6 double bedrooms.

No Ownership Modes: Layout of Achitypes R2++ and R1.

No Ownership Modes: Long section through Co-Housing and Co-Working components.

Each adult is allotted a Co-Working share. Renting the workspace may allow users to supplement their income during periods of economic difficulty. The proximity of the home to the workplace may improve the way of life of the users, with whole businesses being born through inhabitants working together.

No Ownership Modes: The scheme acts as a gateway to the new public space.

The thesis’ grow from each other and form part of a new social framework in both the private and public realm.

Vessel for Participatory Democracy: Detailed development of the vessel and associated structure.

The ground plane becomes one with the landscape.

Vessel for Participatory Democracy: Ground plan and landscape.

Vessel for Participatory Democracy: First floor plan.

Vessel for Participatory Democracy: Second floor plan.

The administrative offices to support the running of the participatory democracy.

Vessel for Participatory Democracy: Typical upper floor plan.

Vessel for Participatory Democracy: Imagined within the site.

Both schemes are situated in the heart of Glasgow’s oldest district, the Merchant City.

A change in use

At the smallest scale, everyday objects inherent uses are adapting. A dining table is now not just for formal dining but a surface for a multitude of activities.

1:20 cell model

Flexible space weaves around more ‘concrete’ servant cores.

View into a cell

Social and private space is defined by servant spaces, changes in level and axis. A ‘Duchamp’ door creates an extended space either belonging to the private domain or the more social.

Section through a cell

Space is reordered through activities rather than defined by rooms.

Section through a block

The section tries to explore the relation between a more interwoven relationship between domesticity and labour. Small open courtyards and changes in levels help distinguish changes in use and privacy.

1:500 massing model

Using a 3x3m grid I explored multiple variants of masses siting within the context of the block.

1:100 structural model

The oversized timber truss along the ‘horizontal fly tower’ allows space for environmental systems, and to not hide them away.

1:100 tectonic model

Exploring the relation of a skeletal timber structure against a solid mass.

Bay study

This early facade study makes use of cheap and readable materials. The timber colonnade supports a space for display, storage and performance, allowing the activity within to be expressed externally.

1:50 technical section through the performative space

This section through the building shows the relationship of the timber performative pavilion against the more ‘concrete’ servant spaces.

Urban block

We propose to arrange the different departments of a school around an urban block within the Merchant City and for it to be open for public use. The school is open to residents and wider city habitants, offering access to education and providing public amenities while being fully integrated into the city fabric.

Trongate facade

Typology section

The design uses a range of typologies and stacks them on section to create homes for varying types of users while sharing communal spaces in the form of a courtyard and roof terrace.

DOMESTICITY AND LABOUR DWELLING

This proposal is situated in a plot of 51.50 m2. It is designed for a young couple, where one or both can work in the same space. The element that marks the change in the use of space is the difference in floor level and ceiling height. The design separates labour and domesticity, so work and private lives develop in individual spaces. The front elevation has a brick lattice, which permits the entry of light but also creates a sense of privacy.

DOMESTICITY AND LABOUR 3D MODEL INTERIOR VIEW

nterior view of model where the changes of level in both floors and ceilings can be seen to separate activities. The height in the work area gives versatility to the space, to carry out diverse activities in spite of being a reduced space.

LABOUR AREA INTERIOR VIEW

This image shows the perception of space from the point of view of the observer. The wall that divides domesticity and labour does not reach the ceiling so as to generate the sensation of continuity of space.

MERCHANT CITY URBAN HOUSING SECTION

The Merchant City is a centre for trade, (goods, services, culture and experiences). My thesis proposal is to create space for both culture and housing. Houses will be for two demographic groups, ones in need of healing from overworking, and those that are looking healing by working, following on from our first proposal for the district. Taking the cell’s concept as a start point, different levels will still separate uses, but on a larger scale. My thesis is that people from different sociodemographic groups can interreact in the same area over a variety public, private and semi-private spaces allocated across different levels within the same architectural proposal. Living - working dwellings (flats) are allocated on lower floors of the building. Microflats are a response for people who can not afford housing or need short term use. These will be allocated in the upper part of the building. The cultural are will be a multi-purpose space where its main use is a concert hall. It is connected to a plaza which is an open space that can hold different activities during day and night and even seasonal events.

URBAN HOUSING HUTCHENSON ST. SECTION

The section along Hutchenson street allows us to observe the scale of the proposal in relation to the existing architectural context, as well as the proposed change in use of the surrounding streets; In this case it is proposed to pedestrianize Wilson St. Also, in Trongate St. wide pavements are proposed to prioritise pedestrians and leaving a street for the transit of public transport and delivery vehicles for the businesses in the area.

INTERNAL VIEW

View of the internal pedestrian precinct, where diverse activities can happen during different seasons. It shows proposed materials, that contextually match their surroundings, and human scales.

Merchant City - Initial Site Analysis

From the initial site analysis, we identified the lack of social infrastructure in the surrounding area of the site. The project chooses diverse vulnerable groups across society and reforms a part of the city to accommodate their fundamental needs, bringing in the density and services needed to sustain a community and support the surrounding vicinity of our district.

Observing Labour through Play

My project focuses on the needs of workless families, aiming to break the cycle of unemployment by making different models of labour observable to children from workless households and providing parents with the facilities to access support finding a job.

Approach from South-West of Proposal

View of the main public entrance to the proposal looking towards Trongate. The proposal is set back from the street to allow for the creation of a public square in front.

Approach from North-East of Proposal

View of the back of the proposal. All domestic circulation is external and exposed to allow for smaller communities to be formed around the shared front gardens that each serve four flats.

Long Section through Proposal

The long section shows the vertical play area that takes place in the core courtyard of the building. This allows children to observe different modes of labour in the public library on the lower floors and the office spaces within the flats that are placed to face into the play area.

Typical Housing Floor Plan

The flats are split over two levels and interlock to create shared outdoor spaces at the front and back. This front and back garden will be shared between a different set of 4 flats to create smaller communities for shared working and childcare.

Axonometric of Units Stacking

This drawing shows the way the flats interlock to create shared outdoor space on two levels. Each colour represents a different 3 or 4 bedroom family home.

Lower Floor Plan of a Unit

This is a typical lower floor plan of a flat. The design comes from my aim to create housing where domestic labour (primarily childcare) and traditional labour (‘work’) can coexist and complement each other by creating working and childcare communities around shared outdoor space.

Typical Upper Floor Plan of a Unit

This is a typical floor plan of an upper floor plan of a flat.

Working Model Photos

These photos are taken of a model made to work out my initial ideas for a unit that deals with the issues of the relationship between labour and domesticity. I wanted to tackle the question of ‘how can you work from home without feeling like you are working from home?’ My solution was an upper floor that can fold up during the day to create a double height work space on the lower floor. Additionally, the walls between units can slide open to allow for collaboration between neighbours to resemble a more traditional office setting.

Urban Nomads

An portable apartment for freelancing labour

Overview

Community

Glasgow Grand Opera House

West facade

Opera Hall

East facade

Perspective

Site Research

Concept

Diagrams

Orthographic Drawings

Housing Types

Long Section

Interior Spaces

A Collective Library

The library becomes a place for families as well as individual sanctuary.

A Shared Culinary Experience

The communal kitchen provides a social and learning environment for all ages.

The Urban Demographic

What makes people want to stay? Currently, there is a state of impermanence in Merchant City. It is lively in at the weekend and empty during the week. It is seen as a place where time is spent passing through it rather then staying. Offering the amenities to have the choice to stay, whether you are an artist, student or young family is crucial to the design strategies.

Street Conditions; Light and Heavy Labour

Differences in light and heavy labour, changing position depending on light; heavy structures to the north of the site facing Wilson Street, and light structures to the south facing Trongate. The painting studio on the roof is a hybrid of heavy and light structure, allowing green space to envelope the studio in a tranquil setting. It becomes a garden and play space for children.

1:2500 Proposal in Context

The masterplan comprises a school, multi-generational housing units and an artists in residence unit. Colonnades invite you into the space, providing covered walkways and open spaces for markets and exchanges. A monument, not exceeding the heights of the surrounding context, acts as a waymarker in Merchant City.

Ground Floor in Context

The retail and commercial spaces, such as the independent cafes and museum, maintain an activated, lively space throughout the day.

Ground Floor Proposal

First Floor Proposal

Cell Iteration for a Single Occupant

This micro study of the movement within a residential unit shows the private spaces divided by a large, inhabited wall into the semi-public studio and library space. Subtle level changes delineate this hierarchy, with soft buffers such as planters also creating further sub-divisions of space. Integrated furniture allows for transformative open areas, as well as thick floor plates for storage and pop-up furniture.

Labour and Domesticity with the Building

LLGC Calendar CC AlisonW at English Wikipedia

Thesis: Due to lack of funding across the UK toward the end of the 20th and start of the 21st century, Queer spaces have been disappearing. Fading out due to lack of support to keep them open and running. A good example of this is the ‘Gay and Lesbian Centre’ that was once a thriving hub to community in London. Seen as a milestone in the LGB community at the time due to it being helped by the Greater London Council’s Charter for Lesbian and Gay Rights launched in 1986. This centre was a new start to help support for the community as well as providing them with several utilities such as specialised bookstores, offices for queer organisations and many more social engagement activities. I drew a lot of inspiration from the idea of this space which unfortunately closed pre-maturely in the 90s after just 6 years of running. Partly due to a fault of a new government that stripped LGBT funding and part due to infighting between the different spectrums of ‘Queer’ at the time. While this space was good for the community, it had fundamental flaws socially which I think was partly due to the era it started. However, I believe a space like this would be much more functional in today’s climate due to what some consider a second wave of feminism and queer liberation.

Map of Queer Spaces throughout Glasgow

Upon looking further into this, I realised that there is not only in fact a distinct loss of spaces across the country, but a clear gap in non-profit spaces for Queer people that are solely for the community. A fact that is quite shocking due to how integral the Queer community has been in British history. This becomes even more apparent when you look at Glasgow as a city. A major city in Scotland that has been considered by many to be one of the most LGBTQ+ friendly countries in Europe and the world. The vast majority of the Queer spaces in Glasgow are bars, clubs and spaces that are there to profit off of the community. There is no denying that these are key for the Queer community but shows a concerning trend that the only way to access the community is thought financial means. Further research showed me that since the shutting down of the London Gay and Lesbian centre there has not been a non-profit solely Queer venue open in the UK. Showing that the need for such a space was in demand.

Site within Glasgow City centre

Site Massing

Due to the site's large footprint I decided to split the building up in order to create a typography of different uses throughout the site. Designing spaces for the art to be more of a show case and letting in a more public side of the greater community, while keeping the more central area of the site to the more private areas. Creating a ‘sanctuary’ of some sort. 

Building Typography

Once the massing was decided I had to figure out what characteristics of the building typography were required. I came to the following ideals in terms of design:

Environmental Factors

Certain environmental aspects were also taken into consideration before developing the interior of the building. Criteria I wanted to stick by during the whole design process. 

Schedule of spaces and Circulation 

Defining the areas that were more public and private as well as how they are circulated throughout the building was also key to figuring out the best way to organise each of them. 

Ground Floor Plan

First Floor Plan

Second Floor Plan

Third Floor Plan

Fourth Floor Plan

Stages of Construction 

I was also keen to bear in mind the environmental impact of the building. Looking into using CLT for as much as possible withing the construction. This led me to prefabricated CLT panels that could be brought onto sight and built in stages. Main components being the CLT walls with cladded exteriors, CLT floor providing horizontal rigidity throughout the building allowing for the uninterrupted voids and finally glulam beam within the roof to hold up a green terrain as well as further horizontal loading. The gallery building has been used as an example as each building will follow the same construction techniques.

Various Construction Types

I made the decision to use different forms of CLT throughout the building to give different environments in each area. CLT walls differ from the voided spaces to the rooms that house the activities. The void spaces would be ribbed CLT to emphasize the feeling of a reclaimed space, showing the raw exposed structure with the circulation taking place in these spaces, increasing the feel of the void spaces as an area you can pass through. Then the roomed areas were to be solid CLT, adding a bit of security to them and a feeling of them being built into the current structure. Enclosing them a bit more when leaving the large voided areas. As for the wall build up this again looked at using materials that would be less harmful on the environment in the long run as well as very low maintenance. Brick for the cladding that would be recalled where possible, while providing the benefit of very little maintenance in the future of the building. Cork for the insulation as it is effective at this purpose, natural and comes with various benefits of resilience, making it a grate long term solution.

Gallery Long Section

The building follows the designs aesthetics described above in, playing with voids throughout the space to create a different areas of interest withing the building. Seen in the cross section and various visualisations. The variety giving different environmental feels to each floor having a focus every time you travel up to another level. The open plan design giving the opportunity for the artwork to be seen at almost every view, thus showcasing the Queer artists as much as possible within the building. The simplistic material textures are also used to make the art stand out and The Gallery: pop, while also giving the raw feel of a reclaimed space that comes with many Queer enviroments.

Gallery Cross Section

P1_Cell

P1_Cell

P3_Urban Housing

P3_Urban Housing

Typical Flat layout for large scale family. Each family member has a specifically designed space aimed at various levels of social interaction depending on their generation. A void space is created above the stairwell so all members can hear each other throughout the home once leaving their specific private bedroom space.

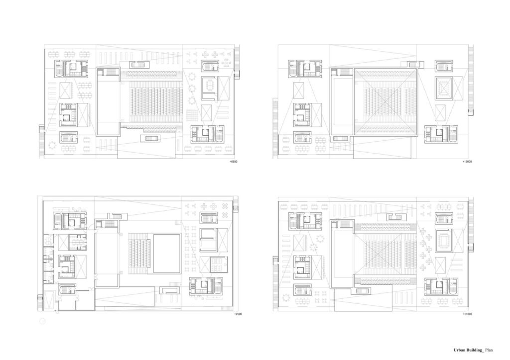
P4_Urban Building

More project work coming soon.

Pause or Pay Campaign

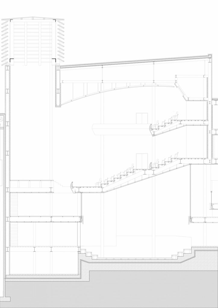
VENUE FOR PERFORMING ARTS

Perspective Section

VENUE FOR PERFORMING ARTS

Building Programme Diagram

VENUE FOR PERFORMING ARTS

Ground Floor Plan in Context

Multigenerational Growth

The Single Demographic City Though the city centre is often rich in cultural diversity, it often lacks such richness in terms of age demographic. The continuous movement of families and the elderly to the suburbs has left a shallow demographic dominated by students and young professionals. In the current Urban planning process, it is clear that there is a major lack of consideration for such groups, forcing them to move out with the centre in order to fulfil their housing needs. Urban Village: A Community Model By applying village typologies to the merchant city, it is hoped that the demographic and richness of village community can be manifested on the site. Through the integration of fundamental community spaces it is hoped that the site will act a whole and inclusive community which scales down the current city into a more tangible environment. People, Experience, Learn, Grow The following project focuses on providing multi-generational homes for vulnerable individuals, pushing for a close knit relationship between families, the elderly and young singles. By redefining the classic model of “your home and your two neighbours” it helps to establish those close knit relationships that would naturally develop over time in a suburban environment, in an urban environment . Not only does the project aim to tackle current financial issue’s faced by individuals when trying to buy property in the city, the Cell model provides a family dynamic which aims to support a shared domestic labour. In the project, daily tasks are deigned to be split amongst inhabitants, forcing strong relationships to be formed. Where the young individual can cook meals for the elderly in return for wisdom, the elderly may babysit while the parents are at work in return for help with daily tasks and parents can provide useful life skills for young individuals, helping them on their way in life. Not only does this alleviate rising loneliness but provides an environment where individuals can live, teach, learn and grow as individuals together.

Design for Natural Systems

Visualisation. A Housing block in the Merchant City, that incorporates natural and mechanical systems to support nature and sustainable life in the city.

Design for Natural Systems

Plan. Adaptable housing units reduce the distance between work, production and the natural.

Design for Natural Systems

Structural Model. The building framework supports nature in the city, which in turn supports human life.

Collaborative Glasgow

Visualisation. A space for collaborative design, production and performance to enable democratic representation of the diverse context it is in.

Collaborative Glasgow

Section. An open experience is arranged around the cycle of idea to production, to performance.

Collaborative Glasgow

Detail Model. The material, spatial, functional experiences are arrived at from a nature-centred approach, lessening the impact and enabling it in the city.

Masterplan Floorplan | Pathway | Rooftop

Cross Section

Section Diagramme

3rd Floor Plan

Living space : the cell

Labour and Domestic

In this co-housing, people can become each other’s traditional meaning family in an unconventional way and decrease spend. They can work at the co-working area or elsewhere by leaving their children at the nursery with qualified older people.Older people can spend the day with their own age or have fun with children. Labour and family are in their own self, but not isolated anymore.

Domestic in Labour

From ground floor to second floor, these areas work as transition area.It brings labour to the domestic and domestic to labour.

Section AA'(1:200)

Combining the three different unit types together, it can helps to create many sharing/private social areas in between in order to work as social condensers.

Seventh Floor Plan(1:100)

Three unit types have been developed. Unit A is th unit type that designed for single parent with children only. Unit B is the type for elderly people only. Unit C is the only mix living unit type in this building.

Tectonic(Young and Elderly center)

1:50 cross section for Young and elderly center with a classical theatre

View into courtyard

The proposed project is a multi-generational live-in workers’ cooperative for those who are most at risk in the current capitalist housing model. Residents act as custodians of the building, allowing them to live there in exchange for the labour required to run the cooperative. The flexible scheme emphasises residents’ growth, which is achieved through gaining diverse skills from a variety of responsibilities. The flats are designed for short-term residency - a few months up to a couple of years - with a simple grid design to keep them cost-effective. Shared social spaces and a diverse community foster a friendly, communal atmosphere.

View along deck

View into flat

Flat typologies

The flats are all variants of the base (cell) layout, with adaptations for different types of inhabitants, intended for short-term occupation. The typologies are assorted across the plan to create a diversity of tenants. The simple gridded layout allows for low cost but high-quality dual-aspect flats.

Occupancy relationships

The variety of activities across the site create interdependencies and a very localised community.

Citadel Communities Block 1 in Proposed District.

The Citadel Community encourages as many domestic, production and commercial tasks to be performed in groups, by providing a variety of large functional spaces that surround a central gathering space - like the layout of Islamic Citadels. The dwellings are organized based on individual and group activities and the many terraces surrounding them provide opportunities to socialize and grow as a community.

Citadel Communities - District in Context.

Glasgow faces the challenge of finding ways to function more sustainably and create less waste whilst housing and providing work for an expanding population. By encouraging communities to live in organized neighborhoods whereby neighbors can support each other with domestic and laborious processes: resources can be shared amongst many citizens and waste can be reduced.

Citadel Communities Block 1 and Residential Cells.

The ‘Acoma Pueblo’ in New Mexico housed a society that lived harmoniously with each other and the natural world. Emphasis is put on spaces where domestic and production activities were performed in groups, these are shared by many multi-level dwellings which are efficiently organized. These layouts have informed the separation of activities in the residential cells of the Citadel Community and allowed more space for public, commercial and production areas throughout all the levels of Block 1.

Citadel Communities - Section through Block 1.

Introductory diagrams

This project began by looking at the half stepped floor slab as the main separator of space within a living unit. The proposal is based upon the psychological divide this creates. The apartments provide the user with a high degree of flexibility and adaptability, with the half step as the only pre determined separator.

Location within the city

Like the masterplan developed previously in this project, where an outer edge contains the historic grid, the proposal conceals and hints at a hidden world inside the scheme.

Masterplan

A master plan was developed prior to the design of this scheme. The main ambition was to maintain the historic grid in Glasgows city fabric, utilise the surrounding vistas to create new ones and provide spaces for informal knowledge exchange in key spaces placed in the new vistas designed. We called these spots ”beacons”, to help visitors and passers by navigate through the neighbourhood.

Ground floor plan

Through chamfered corners, new vistas and narrow lanes, the proposal stays true to the outlines decided upon in the masterplan, and opens up at ground floor level into a semi private courtyard through a series of hour-glass shaped openings in the building fabric.

Sections

Section and cross section showing the dialogue between housing and public space, as well as its relationship with existing building heights.

Typical plan

Each flat has a unique layout and consists of several half stepped floors, with the only constant being the stacked load-bearing cores providing plumbing and services for the kitchen and bathrooms.

Axonometric section

The language of the elevation is kept deliberately neutral to refrain from indicating what a certain room designated usage is.

Apartment plan

The inhabitant chooses what spaces to divide, to what degree and with the materials they themselves prefer. It is not up to the architecture to determine what a certain space should be used for. That is for the inhabitant to decide. The line between labour and domesticity is drawn by each user according to their own needs.

Axonometrics in context

The undulating roof scape is a response to exposure, with the tallest parts facing the outside and the lower parts facing either a square or neighbouring buildings in the masterplan.As the proposal sits within the inner part of the masterplan, the decision was made not to design taller than the buildings surrounding the site, to retain a sense of intimacy.

Views within the proposal

Three moments in the scheme showing: 1. Entering the semi private courtyard. 2. Approaching one of the new public squares through the masterplan. 3. A view of the southern elevation approaching from Argyle Street.

Models

Left: a collection of study- and massing models used to progress the design. Right: a presentation model exploring a section through the scheme, showing the relationship between building and courtyard as well as the incorporation of vertical circulation.

The Bourdon at forty

Photo essay for MacMag 45 documenting The Bourdon Building, home of the Mackintosh School of Architecture, to celebrate its 40th anniversary.

The Bourdon at forty

Photo essay for MacMag 45 documenting The Bourdon Building, home of the Mackintosh School of Architecture, to celebrate its 40th anniversary.

The Bourdon at forty

Photo essay for MacMag 45 documenting The Bourdon Building, home of the Mackintosh School of Architecture, to celebrate its 40th anniversary.

Scenes of an imaginary past

Personal project investigating how nature slowly engulfs manmade environments, invoking scenes of an imaginary past. The history of the place becomes emphasised and amplified.

Scenes of an imaginary past

Personal project investigating how nature slowly engulfs manmade environments, invoking scenes of an imaginary past. The history of the place becomes emphasised and amplified.