Next event:
ERINN SAVAGE – Performance
Tomorrow 15:00 GMT

MSA Stage 3

Stage 3 is the culmination of the first three years of the Bachelor of Architecture (Hons) Programme and prepares students for their first period of practical experience in architectural practice. The primary aim of the year is to enable students to enter practice as confident, independent designers, enabling them to operate effectively in a professional context. On passing Stage 3 students obtain the ARB/RIBA Part 1 qualification.

Throughout Stage 3 students’ design skills and technical know-how are tested through an integrated delivery of the studio and architectural technology courses. Students undertake a series of related design exercises culminating in a comprehensive design project. Students are required to demonstrate a holistic design approach evidencing the integration of the aesthetic and technical aspects of their project proposals.

The Professional Studies course is introduced to develop students’ understanding of construction law, professional ethics, and business processes, engaging students in the realities of contemporary architectural practice. In turn, those ‘realities’ are simulated in a supportive environment through Interact, a collaborative project undertaken with students of engineering and quantity surveying, developing students’ ability to work with other construction related disciplines in a respectful and productive manner.

Stage 3 students are offered the opportunity to undertake a semester of exchange with one of our global exchange partners, and in reciprocation students from our exchange partners can join Stage 3 for either a semester or a full session exchange.

Music Retreat

The combination of a residential and performance space is captured within the landscape of Balloch. Its beautiful surroundings remain interrupted with the buildings matching the tranquil setting. The juxtaposition of the buildings catches the eye of by passers and lures them in for more.

Interaction

The way the buildings interact with one another is portrayed in this social scene. An open private space connects the two buildings together, allowing the children to interact with one another and remain in a safe space.

The Site

Accommodation Section

Bedroom View

Bedroom View

Performance Hall Section

Performance Hall View

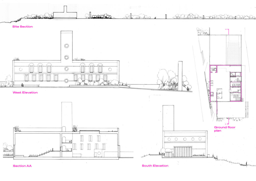
Site Section

Balloch accomodation for music students

3rd year: Upper floor and site plans

Balloch accomodation for music students

3rd year: Ground floor and Detail

Balloch accomodation for music students

2nd year: Rendered section

Library Lounge

2nd year: Render of Library Lounge

Library design

2nd year: Library ground floor book shelf arangement, as well as section of reading pavili

Bath House isometric

1st year hand drawing: View of the bath house on a slope (hand drawn)

Bath house -1

1st year hand drawing: Bath House plan with first bath

Bath house axonometric

1st year hand drawing: -Axo of bath house main floor with showers, bath, massage room and staircase revolving around sunlit tube

Bath House model pictures

1st year hand drawing: Images taken of 3d model. Two baths and sunlit stairwell

The Pedestal

Initial schematic drawing and the development work at 1:2 scale.

Site Isometric

Construction Details

Construction Model

Showcasing the relationship between the brick volumes and timber roof.

Site plan at 1:500 scale

Initial arrival section/ elevation to the site at 1:500 scale

Site section at 1:500 scale

Site section at 1:500 scale

Detailed section and elevation

Visualisations

SISTEMA

Representation of the residential retriet and concert hall for the SISTEMA charity and the local community in Balloch, Scotland.

Site axonometric

Perspective section of the retreat

Sections of the performance hall

Perspective of the complex

Perspective of the performance hall

Axonometric structure

Structural Response to Geometries of Plan - Journey from Urban, through structure, to Natural Environment

Activities Centre Entrance Perspective

Performance Hall Perspective Section

The Brief and Site

Site Introduction

Watercolour

Topographical Model

1:1000. Produced in order to gain a deeper understanding of landscape to harmoniously place my project within

Geological Sectional Study

1:10000. Acrylic & Steel

Capture the Landscape

Sketch model exploring how the architecture could frame the landscape.

Final Model

1:250

Final Model

1:250

Residential Retreat - Model

Section Through Practice and Performance Spaces

I took the ethos of empathetic design, sustainability, and fun into this featured work. This is a residential retreat for the musical charity Sistema Scotland. I focused on creating an environment that was safe and secure for the children but also allowing for autonomy and play. I explored the integration of playground design with music which resulted in a range of practice and performance spaces that changed in focus and formality.

Perspective View of Performance hall and Residential Retreat

Sketched Section Through Residential Building

This section shows the atrium space that connects all the residential rooms with a dynamic, multipurpose seating area. The section leads from the connection to nature with the park to the intimate relationship to the water.

Sketched Section Through Main Formal Performance Space

This section shows the key relation ships between the two public spaces created by the Performance hall. The walkable grass roof emphasises the existing viewpoint with roof lights scattered on top to entice people to peek down and explore the performance hall. A slightly more private square created by the water with the hall able to open to this square as well.

'Sea Life Through a Lense'

This image represents my fundamental design goal: how to frame the natural beauty of Balloch. I took my inspiration from those unfortunate sea creatures who are imprisoned in restrictive and oppressive fish tanks in a sea life sanctuary on the loch. Whilst they are so close to the outdoors they are actually prevented from thriving outside in their natural habitat. In human terms I wanted to create a more positive relationship between inside and outside where visitors felt safe and warm inside but were drawn to the views of the loch and nature outside.

The Site Found

1:1000 Site Plan exemplifying the linear relationship between the residential and performance hall venues; imitating the pre-existing railway of Balloch which, its final stop was at the tip of the pier. The progression of a boat from jetty to jetty via both buildings and a canopy shaded pathway on land, shows the multipurpose links and modes of transport available as ways to accommodate the users when moving around the site.

'Portamento'

Mammals and nature co-exist between the walls of the residential retreat, through vast glazing, an indoor / outdoor living experience and materiality and design elements. On arrival visitors will observe a hanging façade of carved natural wood. The flowing, rippled appearance of the wood connects to sound waves created by children inside to the lapping waves of the river made by Mother Nature outside.

INGREDIENTS

1:50 principles of building detailing and mirroring front elevation render

Mornings in the Nest

Portal on the Pier

This performance hall concept serves as the threshold between land and water and is celebrated when music is being played by the residents. The choice of a curving form was precisely designed to imitate the mountainous range in the backdrop as well as the formation of waves, which are surrounding the pier that grounds the hall.

nestled in context

creativity occupying space

home away from home

cross-section river leven

axonometric site plan

entrance

Perspective Site Plan_ relationship between two buildings

Introduction to Residential Retreat_ Concept diagrams

Exterior Render and Plans

Interior Renders

Exploded Isometric_ Technical study and Private void study

Perceptive Section_ layers

Introduction of Performance Hall _ Concept diagrams

Exterior Render and Plans

Interior layout and study & Illustration of Interior spaces

Exterior view and relationship to Retreat & Exploded Isometric_ Construction

Performance Hall Model

Simple model images showing the sheltered walkways around my performance hall.

Performance Hall Interior Render

This render shows the main space of my performance hall, and can be viewed in three dimensions by clicking here (https://api2.enscape3d.com/v3/view/cc22a562-8204-4b8a-9a35-ede98f92963e?fbclid=IwAR0Fd5ew0veZggyi3Fzn1gy2OZkTqbk9DL-7L04rYr4QQgnSsVOP7vVxxxY)

Performance Hall Perspective Section

Performance Hall Site Plan

Library Model 1

Library Model 2

3_AXIS

Located in Balloch, Scotland, the residential retreat and performance hall will help children with a difficult family backgrounds reconnect with the nature and their surroundings. Seeking similarities between musical harmony, space and human body it is my intention to create a place of escape and contribute to childrens mental health through the interaction with my building, nature and music practice.

Site Plan 1_200

The site for the project is a cross point of three axis: Axis of journey, axis of escape and public/private axis. Laid out in an east-westerly direction, the building responds to its surroundings in a number of ways. The location of the buildings not only benefits from breathtaking views, but also is a part of environmental strategy. In order to achieve energy self-sufficiency, the project of a residential retreat is based on passive use of solar energy.

Floor plans of the Residential Retreat 1_200

The closer to the river edge the more private is the program of the residential retreat.

Perspective cross section of the residential retreat 1_50

The bridge in-between the two buildings is accessible from the sun space of the residential retreat creating the connection to the performance hall and practice rooms.

The Voids

The voids spread throughout the height and length of the building finished with a south facing roof lights act as light wells. The roof windows allow a flood of an unobstructed light that allow a natural light penetration far into the floor plan. The roof light enclosure, ceiling and some walls of the upper floors are painted white to strengthen the illumination by providing strong first reflections. The light reaches the timber panelling of the first and second floor and cast a warm glow throughout the bridges that lead children to their flats.

Flexible Comfort

The flexible system of the partition walls within the cloisters gives the opportunity for every kid to feel comfortable in the residence. The rooms are also designed in a way to provide enough space for the instrument practice.

The sun room

At the south part of communal areas, there is a large sunspace stretching across the south-west facade. It serves several functions from a pleasant place of botanical discoveries to a dreamlike meeting and circulation space. Moreover, it forms a buffer space able to capture heat during winter. The open floor plan allows flexibility and facilities the distribution of the warm air to the communal areas.

In-between

The performance building is conceived more as a pavilion in the park than a classic urban building, more like a roof protecting a public space. The polycarbonate skin allows the sun to penetrate the building, reaching the exposed rammed earth walls that surround the main event space. During winter the thermal mass walls absorb the passive solar energy and slowly release their heat into the interior of the event space reducing the heat demand. The skin of the building allows continuity between the structure and the park, without giving up a certain privacy for the activities that take place inside. Seen from outside, during the day, the translucent skin of the building appears sculptural and does not make the immediate visual communication between the interior and exterior possible; at night, this situation is reversed and the interior becomes perceptible from the outside.

To perform

The secondary structure of the roof consists of thin and deep LVL beams which bring a diffused sun light within the space the whole year round. The primary structure accommodates the lightening and sound equipment.

Exterior Context

Perspective Context

Location Diagram and Site Plan

Floor Plans

Cross Section Progression- 1

Exterior and Performance Hall

Cross Section Progression- 2

Adjoining Courtyard and Accommodation

Interior Renders

Development Model

Exploded Structural Isometric

Development Section

Amphibious

A public performance hall and floating residential retreat for young musicians. Building for transience and commitment to the community through a duet of extreme difference.

Floating Residential Retreat

Public and Private route through the site

Balloch town when residential building has departed into Loch Lommond and Location Plan: Journey from Railway to Loch.

Sited in the centre of Balloch town, the scheme acts as a gateway to Loch Lommond and The Trossachs national park, defining a new town square along the soft boundary of the river.

Visualisations of journey through the site

From train ride to public space, through performance to safety and privacy in nature. Balloch is the remnants of a fractured journey from steam train to steam boat up to the highlands. This project creates a new journey away from the urban.

Floating Residential Docked in Balloch

Retreats being of temporary nature have informed the architecture to be transient. Departing from the performance hall which remains a place making, accessible public asset to the town.

Elevation towards loch

The scheme is a duet of two buildings that require close physical proximity yet an extreme difference in privacy.

Water as a soft boundary for privacy

Residential Plans and Sections

The residential retreat is able to float due to a steel tubular pontoon and uses systems such as: rain water harvesting, passive ventilation and underfloor heating supplied by a closed-loop water source heat pump. Easily deconstructed as a post and beam frame, natural insulation and sheets of zinc to be recycled and reused.

Technical Detail Section

Cross Section from Pier

Space Between Water.

Landscape Design

A series along the site, detailing how the land interacts with the water.

Rendered Site Plan

Extended Pier.

Perspective Performance Hall Section

Interior View of Balloch Performance Hall.

RESIDENTIAL RETREAT PERSPECTIVE ELEVATION

The view of the retreat is shielded partially by the untamed trees, to give the building a sense of security from those that use the park. The glass of the building creates a visual connection between the interior of the building and Balloch's landscape.

RELAXATION SPACE

A space at the top floor dedicated to people who want to escape from other social spaces. It gives people time to themselves, whilst overlooking the river and the scenery beyond.

1. Intro

2. Site Model

3. Retreat Centre Exterior

4. RC Floor Plans

5. RC Section

6. Presenting the Retreat Centre

7. Concert Hall

8. CH Floor Plans

9. CH Section

10. Presenting the Concert Hall

Park Leven & Sistema Music Retreat

The Sistema Music Retreat project, for myself, was about creating two different buildings, in what I found to be a beautiful pastoral setting, that would create a semi private semi courtyard that kids and young adults can enjoy and have a free and diverse experience during their stay. The idea of having activities and places semi privatised for the kids was a leading factor in the design process for the River Side House and Leven Hall. After drawing the two buildings on site and working out the physical relationship they had with one another I wanted to go one step further and solidify the relationship my design had with its surroundings. On this map is not only my design for the Sistema retreat but also a redesign of the area. New pathways, activities and less tar parking lots. Having been inspired by the works of David Chipperfield, Gaudi’s Park Guell and the idea of place this project aims to give back both to the community and nature while not boldly conforming to its surroundings in a contemporary manner.

Collage

Early concept development

A Walk on Leven

Early documentation of the River Leven

Vale of storage units

Mapping of the industrial estates on the River Leven

Development

sketchbook scans

Development

sketchbook scans

The House That Was Always There

Interiour drawings

Balloch Pier

Axonometric drawing

The House That Was Always There

perspective section

A Public Pool in London

Studying the Westway

Tracing the changing city below the constant line of the motorway

Collage

Early exploratory studies

Studies

Developing the project

Interacting with the motorway

A new language between motorway and the island beneath

Proposed Location Plan 1:2500

Situated at the bottom of Balloch Pier, the new retreat offers an inclusive for all type of performance art. Surrounded by nature, this allows privacy, creating a peaceful environment to gain creativity - outdoor activity can occur.

PATH CONCEPTS

The project emphasises a sense of journey. The buildings act both as a destination and as a starting point for adventures beyond. The incorporated walkways connect the different buildings and allow people to explore the boundary where water meets land.

SITE PLAN

This most recent project as part of Stage 3, is a music retreat fro children and community performance hall in Balloch, for the music charity Sistema. The proposal uses active and passive systems that utilise the environmental nature of the site which include the bank of the River Leven just before it joins Loch Lomond, and an island facing the bank. The retreat is on stilts which straddles the boundary between the island and the water. The island provides seclusion whilst still engaging with the town. It takes precedent from ancient Crannogs once found on the loch often built for defensive purposes.

AXONOMETRIC

GROUND + 1ST FLOOR PLANS

An island denotes isolation. The water acts as a defensive barrier and gives the retreat a sense of protection, in a location that is open and public. The client expressed that the trip was equally an opportunity for the children to get out of the city and be in nature as it was about learning music. I wanted to foster this. The island allows for the children to have space to explore freely without any interaction with the public.

DETAILED SECTION

SITING AND FORM CONCEPT

The offsite Brettstaple construction allow for easy and sustainable deconstruction as the panels can be readily reused. All that is left is the recycled aggregate concrete foundation, which creates a platform for new interventions or a simple public space. This was to mimic the man-made islands, which is all that is left behind from the ancient Crannog structures. The temporary nature of the retreat suggests the island is only borrowed and what is left is a space for the community to inhabit.

MUSIC RETREAT + COMMUNITY PERFORMANCE HALL

The community performance hall acts as front door to the music retreat. This is to encourage chance happenings as well as organised engagement between the community, visitors and those on the music retreat.

The bubble musical center

This project concerns a music center in Ballock comprising rehearsal rooms, an auditorium and accommodation for young musicians coming for internships. The idea here was to achieve an architecture which would reduce the carbon footprint as much as possible. I thought of one of my trips to Sicily (Italy) where I discovered very large ovens resembling large igloos used to produce handcrafted terracotta. These shapes are designed to minimize heat loss. This is why my project explores these unusual forms.

The bubble musical center

The bubble musical center

The bubble musical center

Little Venice of Cadiz

This project aims to respond to a future rise of sea level due to global warming. It is located in the lagoon of Cadiz. This Zone of Spain would be most affected by the rising waters because the level of land is very low. I therefore propose a partly floating village and partly on stilts This floating district is organized around a market on stilts. The inhabitants around the market sell fish, fruits and vegetables as well as products of marine culture (mussels, oysters and algae) in the market open to visitors. All these products can be consumed on site in small restaurants around the market forming small islands with panoramic views of the lagoon. Everything is produced by residents of the floating village, in floating greenhouses and fish and seaweed farming parks located around the dwellings. Leisure facilities can also be found in the district for inhabitants and to attract visitors from Cadiz: A volleyball court and a football field are provided as well as changing rooms and meeting rooms and small indoor sports halls. At the end of the district, there is an artificial beach of a unique shape reserved to bathers. Each home is designed: . to have maximum energy independence and a certain intimacy; . An external personal space sheltered from the sun; . And a pontoon to dock a boat Rainwater is collected by a steep roof, then directed to tanks located under the houses. Each unit has its wind turbine in order to produce its own energy as well as solar panels placed on the roofs.

a view from the residence

encapsulating the sense of journey from the residential towards the performnace hall, sitting out in the landscape.

the space between

a sense of the enclosed and intimate environment of the residential retreat with its subtle hints of connections to broader landscape.

the site

a representation of the jurney and connection between the residential and performnace.

residential atmosphere

a study of the intimate yet lively atmosphere of the residential portion of the scheme.

residential form

a representation of the costal influence on form, material choice and colour and scale.

a residential detail

an exploration of material and form: a CLT structure.

The scale of the scheme

a more accurate sense of scale of the journey between the residence and performance hall, across the pier and into the water.

modelling the performnace hall

an exploration of the simplicity of structure and transparancy of material- this space is exposed and honest.

a performance detail

an indepth exploration of the layers of structure and material that this building endeavours to make apparent in its design.